460 Irwin St
Offered at: $399,000
MLS®: 996508
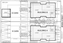
Approved Development Opportunity10 residential+2 Commercial Units. Located in vibrant South Nanaimo,450 & 460 Irwin Street offer a rare and ready-to-go development opportunity.Centrally positioned within walking distance to the scenic seawall and convenient shopping, this property combines an excellent location with an already-approved vision for the future.The project has a Development Permit approved by the City of Nanaimo for two multi-family buildings, each thoughtfully designed with five residential units + one CRU. Building A and Building B are mirror images, and the floor plans are up to 1000 sq/ft.The innovative design ensures appropriate parking for residents and supports much-needed "missing middle" housing — a critical type of housing that bridges the gap between single-family homes and larger apartment complexes.This is a prime opportunity to step into a project that aligns with Nanaimo’s growing demand for diverse, attainable housing.Measurements approximate to be verified
Quick Stats
Key Home Data
0
BATH(S)
0
BED(S)
Contact for
SQFT
YES
SHOWING AVAILABLE
Property Type:
Residential Home Ownership:
Freehold
Payment Calculator
Calculate your monthly mortgage payment.
Mortgage Amount
$
Amortization
years
Payment Freq.
Interest Rate
%
Calculating...
All About the Details
See specific details below.
Neighbourhood Statistics
Get to know your neighbourhood.
