487 Burnside Rd
Offered at: $2,900,000
MLS®: 1003034
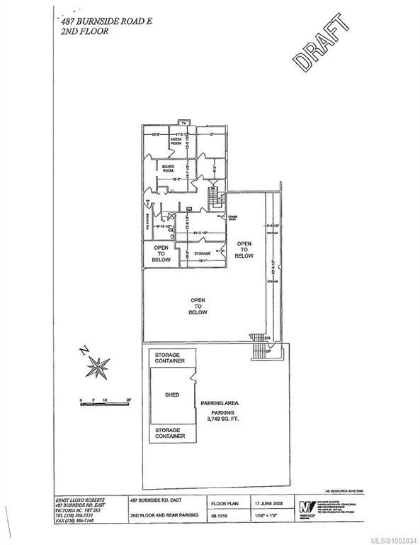
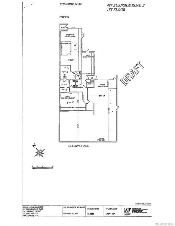
Rare chance to own a versatile industrial property in the heart of the core area. This high-utility building features two ground-level units with separate entrances, a mezzanine, dedicated office spaces, a boardroom, and a rear exterior shop with two powered sea cans. Ample parking enhances accessibility. Ideal for investors or owner-occupiers, the property offers flexible occupancy (six months’ notice required to existing month-to-month tenants - triggered from final subject removal date) or renegotiate leases for steady income. Workshop height 17'6" exterior door 10'x12'. Located in a rapidly re-developing area, this asset holds potential for future growth and development. Do not approach tenants and all measurements are approximate and should be verified by buyers. Act now to secure this high-value, multi-functional industrial gem.
Quick Stats
Key Home Data
0
BATH(S)
BED(S)
Contact for
SQFT
YES
SHOWING AVAILABLE
Property Type:
Commercial Sale Home Ownership:
Freehold
Payment Calculator
Calculate your monthly mortgage payment.
Mortgage Amount
$
Amortization
years
Payment Freq.
Interest Rate
%
Calculating...
All About the Details
See specific details below.
Neighbourhood Statistics
Get to know your neighbourhood.
