2855 Quesnel St
Offered at: $19
MLS®: 1009014
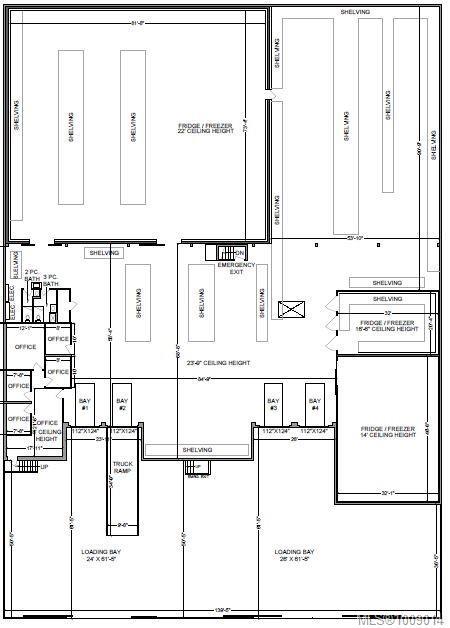
INDUSTRIAL WAREHOUSE OPPORTUNITY (20,395 SF) - Central location with direct access to Highway 1 & 17. Features: Reception, boardroom & 4 private offices; 3 Coolers; 23'9'' ceiling height; 4 loading docks with electric plates; one ramp for cube vans; overhead heat. M2-I Zoning allows for many uses including but not limited to: Warehouse, Retail of home furnishings & supplies or sporting goods, Mail order business, Quick freeze lockers, Vehicle sales & rentals, , Wholesale, Printing & Publishing, and many more!
Quick Stats
Key Home Data
0
BATH(S)
BED(S)
Contact for
SQFT
YES
SHOWING AVAILABLE
Property Type:
Commercial Lease
Payment Calculator
Calculate your monthly mortgage payment.
Mortgage Amount
$
Amortization
years
Payment Freq.
Interest Rate
%
Calculating...
All About the Details
See specific details below.
Neighbourhood Statistics
Get to know your neighbourhood.
