Lt 1 Henson Rd
Offered at: $999,900
MLS®: 1013163
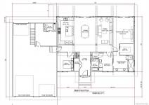
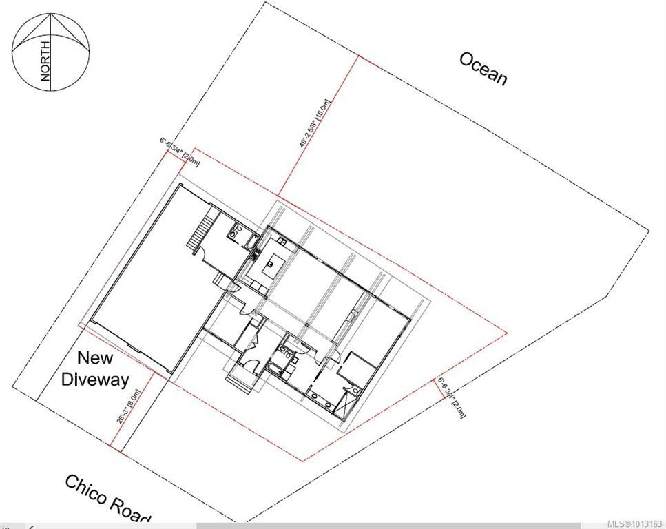
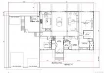
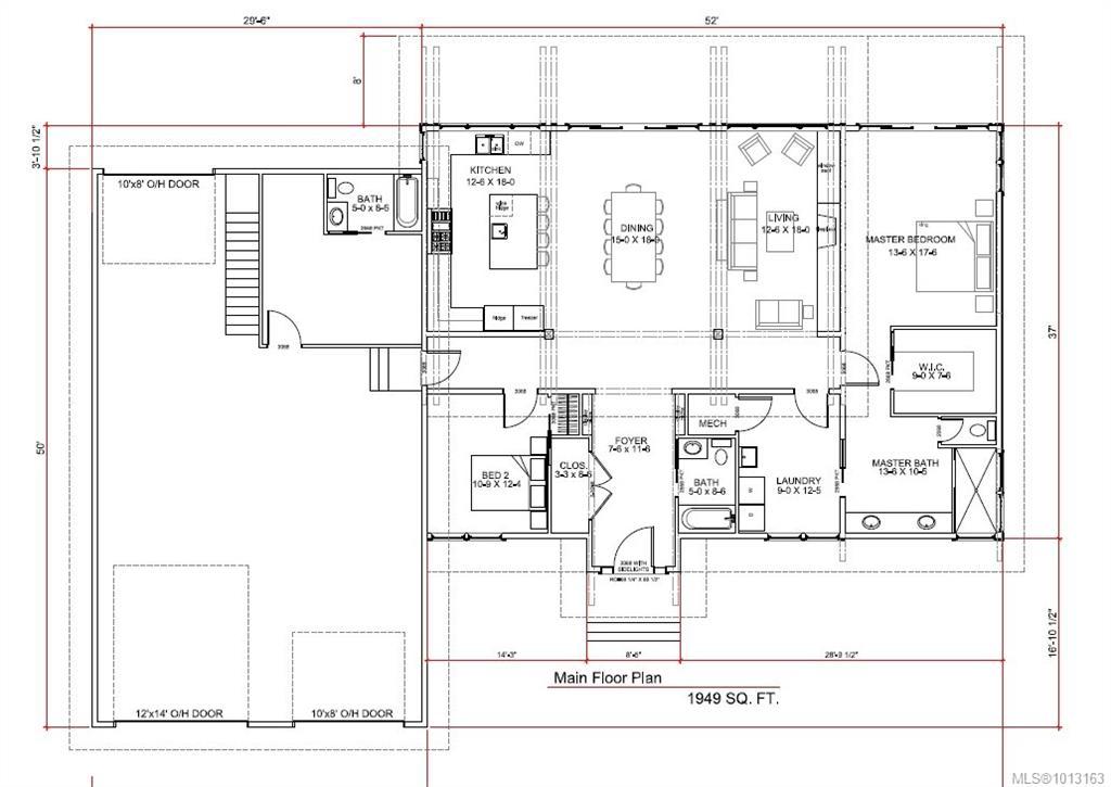
Discover a rare and hidden gem near Qualicum Beach—an exceptional waterfront lot offering over 125 feet of pristine walk-on shoreline. Cleared and ready for construction, this expansive 0.37 acre property provides the perfect canvas for your dream home. Tucked away on a quiet, no-through street, the location ensures unparalleled privacy and serenity. With sweeping, unobstructed views of the breathtaking Strait of Georgia, you’ll wake up to stunning sunrises and end your days with mesmerizing ocean vistas. The gently sloping land offers easy access to the beach where you can enjoy peaceful walks, watching wildlife or launch a kayak. Conveniently located near trails, marinas and fine dining. Central island features key attractions such as the white sands of Tribune Bay Beach. Don’t miss the chance to own a slice of paradise and some of Vancouver Island’s prime walk on waterfront. Zoning will allow for a secondary suite. Plans available. Sizes are approximate.
Quick Stats
Key Home Data
0
BATH(S)
0
BED(S)
Contact for
SQFT
YES
SHOWING AVAILABLE
Property Type:
Residential Home Ownership:
Freehold
Payment Calculator
Calculate your monthly mortgage payment.
Mortgage Amount
$
Amortization
years
Payment Freq.
Interest Rate
%
Calculating...
All About the Details
See specific details below.
Neighbourhood Statistics
Get to know your neighbourhood.
