3933 Saanich Rd
Offered at: $1,159,000
MLS®: 1015575
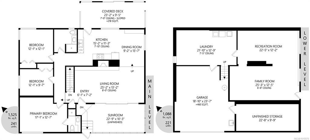
This new renovated home features a bright open kitchen with brand-new stainless appliances, sunken living room, enclosed sunroom. The main level offers three bedrooms and two bathrooms, including a rare 3-piece ensuite for this vintage. Enjoy seasonal views of Swan Lake Bird Sanctuary from living room and adjacent enclosed sunroom. Full-height, easily suite-able basement offers endless potential. Updates include thermal vinyl windows and new laminate floors. Double garage, ample storage, and an 8,000+ sq. ft. lot with room for kids, pets, or gardens. Located close to Saanich Centre, Uptown Shopping Centre, and the Swan Lake walking loop, direct transit to UVic or downtown, this home combines character, comfort, and convenience in one of Saanich’s most desirable areas.
Quick Stats
Key Home Data
2
BATH(S)
3
BED(S)
Contact for
SQFT
YES
SHOWING AVAILABLE
Property Type:
Residential Home Ownership:
Freehold
Payment Calculator
Calculate your monthly mortgage payment.
Mortgage Amount
$
Amortization
years
Payment Freq.
Interest Rate
%
Calculating...
All About the Details
See specific details below.
Neighbourhood Statistics
Get to know your neighbourhood.
