1914 Maple Ave
Offered at: $789,900
MLS®: 1021276
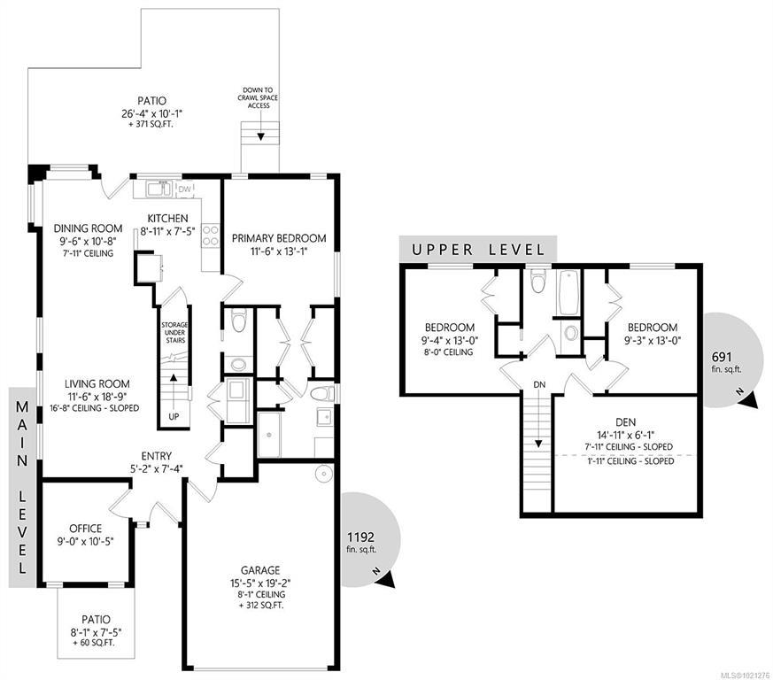
Well Kept Builders Own Custom 2007 Year Built. Mins walk to the Ocean, 5 mins walk to Sooke Town Core, close to Schools, Bus Routes, and All Amenities! 3+ Bed, 3 baths with Master on Ground Floor (set up like a Rancher) and 2 bedrooms, 4 pce Bathrooms, and a little Den area up - ideal for teenagers, Guests, or if you just need more space. Features Hardwood Floors and Vaulted Ceilings on main, nice Den -Office -Media room or potential 4th bedroom if added armor, 2pce bathroom on the main floor. Open living room flows into the smartly tiled dining room area with access to the fully fenced backyard with garden beds, storage area, and utility shed. Centrally located bright kitchen, with huge pantry set up perfect for those who like to entertain and soft closing cabinets. Good sized Master bedroom with His and Her Closets, a nice 3 pce Ensuite, and a huge easy access shower. Enormous amounts of storage space on huge heated crawlspace. Single Car Garage with a shop area.
Quick Stats
Key Home Data
3
BATH(S)
3
BED(S)
Contact for
SQFT
YES
SHOWING AVAILABLE
Property Type:
Residential Home Ownership:
Freehold
Payment Calculator
Calculate your monthly mortgage payment.
Mortgage Amount
$
Amortization
years
Payment Freq.
Interest Rate
%
Calculating...
All About the Details
See specific details below.
Neighbourhood Statistics
Get to know your neighbourhood.
