#102 2886 4th Ave
Offered at: $4,700
MLS®: 1023623
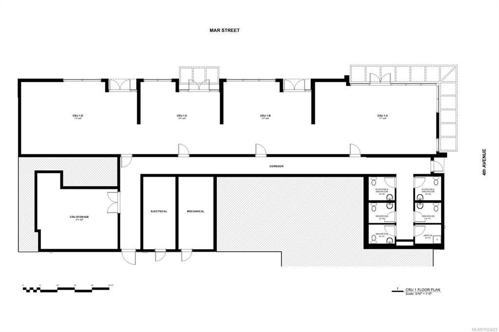
Located at the corner of 4th Avenue and Mar Street in Port Alberni, this new five-storey mixed-use development will offer 2940sq ft of flexible ground-floor commercial space with 40 affordable housing units above. The commercial component provides highly adaptable premises ranging from a minimum of 564 sq ft up to a maximum contiguous area of 2940sq ft across four units. Spaces can be demised into a variety of smaller configurations to suit tenant requirements or combined to accommodate larger users.
Designed in an L-shaped configuration, the building features continuous commercial frontage along both streets, creating excellent visibility and an active streetscape presence. Its prominent corner location maximizes exposure for businesses, while on-site tenant parking and a drive-aisle connection to the rear lane provide convenient access. Construction is anticipated to be completed in July 2027.
PRICE IS GROSS PER MONTH. INCLUDES ALL TRIPLE NET COSTS. GST not included in price.
Quick Stats
Key Home Data
0
BATH(S)
BED(S)
Contact for
SQFT
YES
SHOWING AVAILABLE
Property Type:
Commercial Lease Home Ownership:
Freehold
Payment Calculator
Calculate your monthly mortgage payment.
Mortgage Amount
$
Amortization
years
Payment Freq.
Interest Rate
%
Calculating...
All About the Details
See specific details below.
Neighbourhood Statistics
Get to know your neighbourhood.
