1618 Richardson St
Offered at: $1,649,000
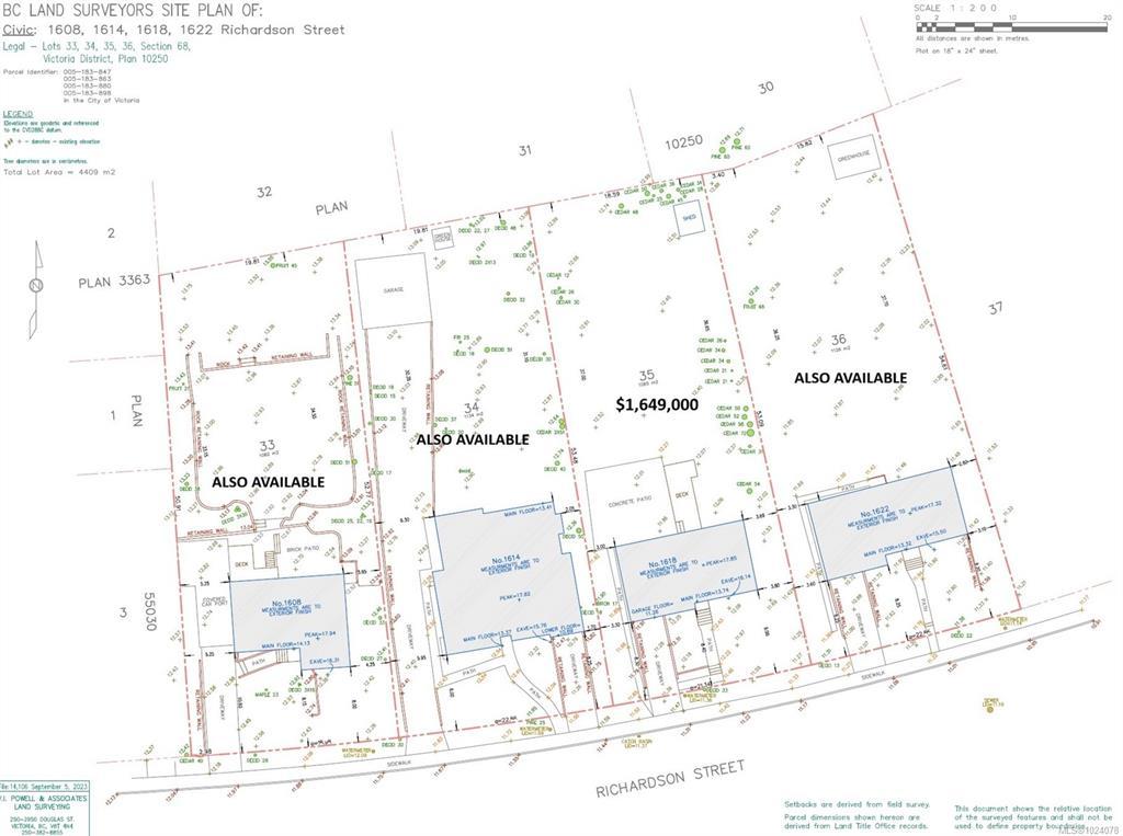
MLS®: 1024078
This is an incredibly rare opportunity to acquire over 47,000 square feet of land with 292 feet of frontage on Richardson Street. The site consists of four separate parcels, each currently featuring a home. With a land price of $144 per square foot there is no better place to build. Located in Rockland, Victoria's most prestigious neighborhood, this site is completely flat, ensuring an easy and affordable build. It is situated on the newly completed AAA biking road, minutes from the ocean and shopping, and located on a BC Transit route. The property size and configuration offer numerous possibilities under the new OCP, including four-story buildings, townhouses, or SFHs. The 1.6 FSR allows for up to 75,000 buildable square feet without rezoning. This is also an ideal location for a rental building with significant return given the higher rental rates for the area. The buyer is responsible for verifying any proposed subdivisions and possible uses with City of Victoria staff.
Quick Stats
Key Home Data
2
BATH(S)
3
BED(S)
Contact for
SQFT
YES
SHOWING AVAILABLE
Property Type:
Residential Home Ownership:
Freehold
Payment Calculator
Calculate your monthly mortgage payment.
Mortgage Amount
$
Amortization
years
Payment Freq.
Interest Rate
%
Calculating...
All About the Details
See specific details below.
Neighbourhood Statistics
Get to know your neighbourhood.
