9828 Croft St
Offered at: $895,000
MLS®: 1025264
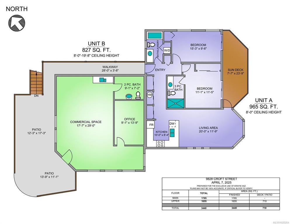
An exceptional opportunity to acquire a versatile income property offering both stability and upside. The building comprises three commercial units, one dedicated storage unit, and a well-appointed two-bedroom residential suite currently leased to a long-term tenant at $1,400 per month. With the balance of the property to be delivered vacant at completion, incoming ownership gains rare flexibility whether to curate a complementary tenant mix, reposition the asset for enhanced returns, or occupy part of the building while maintaining residential income. Well suited to investors seeking value-add potential or owner-operators looking for a live-work or income-supported footprint, this property presents a compelling combination of immediate revenue and future optionality. Recent price adjustment further enhances the opportunity to secure a multi-use asset with long-term upside. Explore the possibilities and unlock the next chapter of this property. Contact the listing agent today.
Quick Stats
Key Home Data
0
BATH(S)
BED(S)
Contact for
SQFT
YES
SHOWING AVAILABLE
Property Type:
Commercial Sale Home Ownership:
Freehold/Strata
Payment Calculator
Calculate your monthly mortgage payment.
Mortgage Amount
$
Amortization
years
Payment Freq.
Interest Rate
%
Calculating...
All About the Details
See specific details below.
Neighbourhood Statistics
Get to know your neighbourhood.
