#45 3050 Sherman Rd
Offered at: $479,000
MLS®: 1030584
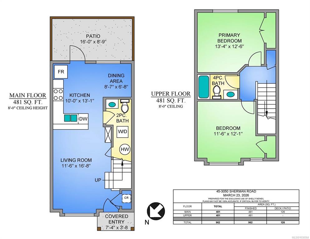
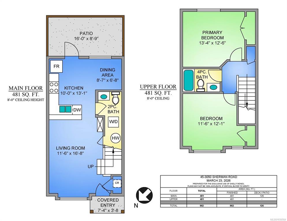
Welcome Home to this inviting 2 bedroom, 2 bathroom 2017 built townhome in The Sequoia, a well-designed community suited for modern living. Ideally located near schools, shopping, and a variety of restaurants, this home offers everyday convenience in a desirable setting. The main level features an open-concept layout with a living area, a contemporary kitchen with breakfast bar, and a comfortable dining space with access to a fenced patio, perfect for relaxing or enjoying time outdoors. A 2 piece bathroom and in-unit laundry complete the main floor. Upstairs, you’ll find two well-sized bedrooms and a full 4 piece bathroom, offering a practical and functional layout. One parking space included, no age restrictions, and both pets and rentals are permitted (see bylaws). A wonderful opportunity in a well-located community. Book your showing today. All data and measurements are deemed to be accurate, buyer to verify if important.
Quick Stats
Key Home Data
2
BATH(S)
2
BED(S)
Contact for
SQFT
YES
SHOWING AVAILABLE
Property Type:
Residential Home Ownership:
Freehold/Strata
Payment Calculator
Calculate your monthly mortgage payment.
Mortgage Amount
$
Amortization
years
Payment Freq.
Interest Rate
%
Calculating...
All About the Details
See specific details below.
Neighbourhood Statistics
Get to know your neighbourhood.
