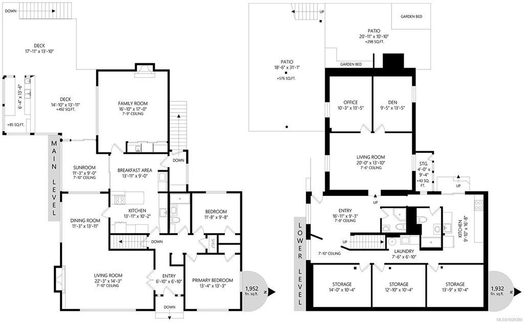
3510 Richmond Rd
Offered at: $1,299,000
MLS®: 1029380
Welcome to this exceptional opportunity in a prime central location! Set on a large lot, this property features a sun-drenched backyard—perfect for enjoying evening sunshine and beautiful views. The expansive deck creates an entertainer’s dream for hosting family and friends. Inside, the home offers a spacious and functional layout with a huge living room, separate dining area, and a cozy breakfast nook. A generous family room provides additional space for relaxation, while the updated bathroom adds modern comfort. The in-law suite offers flexibility for extended family or potential rental income. Ideally located within walking distance to all amenities and on major bus routes, you’re just minutes from UVic, Camosun College, and only half a block from St. Michaels University School. Whether you're a homeowner looking for space, an investor seeking rental potential, or a builder exploring future development opportunities, this property checks all the boxes.
Quick Stats
Key Home Data
3
BATH(S)
4
BED(S)
Contact for
SQFT
YES
SHOWING AVAILABLE
Property Type:
Residential Home Ownership:
Freehold
Payment Calculator
Calculate your monthly mortgage payment.
Mortgage Amount
$
Amortization
years
Payment Freq.
Interest Rate
%
Calculating...
All About the Details
See specific details below.
Neighbourhood Statistics
Get to know your neighbourhood.
